解放性と独立性を両立!対面キッチン型LDKと間仕切りで仕切られた6帖の洋室は必見。PC造・1LDKタイプのモデルルームを特別公開中|大成建設ハウジング
- マンション

ここがポイント
大成建設ハウジングが大宮のPC造4階建て物件の1室をモデルルームとして期間限定で公開中!13.8帖の対面キッチン型LDKと間仕切りで仕切られた6帖の洋室で、高遮音・高断熱・高気密を体感できます。その他にも豊かな暮らしを演出するバルコニーや大きめの収納スペースなども見逃せないポイント。この機会にぜひ一度ご来場ください。
申し込む| 建物構造 | PC造 |
|---|---|
| 日時 |
2025年11月18日(火) ~ 2026年3月30日(月) 10:00~16:00 |
| 会場 | 埼玉県さいたま市大宮区上小町634
大成建設ハウジング 関東支店隣接 アクセスマップ |
| 交通 | JR各線「大宮」駅より徒歩18分、JR「大宮」駅西口より西武バス「西上小町」バス停下車すぐ |
| 主催 | 大成建設ハウジング株式会社 |
| 参加費 | 無料 |
| 見学日時の確定について | 見学日時は担当者からご連絡した後に確定となります。 後日メールまたはお電話でご連絡させていただきますのでお待ちください。 |
| 定休日 | 火・水 ※ゴールデンウィーク、夏季休暇、年末年始についてはお問い合せください。 |
| 予約について | ご予約は(本日含む)2営業日以降でお願いいたします。それ以前の場合は直接お電話にてご連絡ください。 |
完成してからでは見られない建築の工程が見られる!

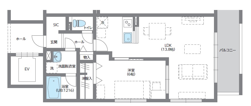
間取り図
【物件概要】
■構造・階建て/壁式プレキャスト鉄筋コンクリート造・3階建て
■戸数/20戸(事務所1戸・1LDK 19戸)
■見学できるモデルルーム/単身者またはDINKS向け 1LDKタイプ(46.08㎡)
・13.8帖の対面キッチン型LDKと間仕切りで仕切られた、解放性と独立性を併せ持つ6帖の洋室
・豊かな暮らしを演出する、ガーデニングも楽しめる奥行1.2m以上のバルコニー
・シューズクロークや大きめのクロゼットなど、充実した収納スペース
・高い遮音性、断熱性、気密性を併せ持つ優れた居住性能を体感できる
高い遮音性、断熱性、気密性が体感できる貴重な見学会
賃貸マンション「パルコン フレックス」は、品質管理の行き届いた工場で生産された大型のコンクリートパネルで床・壁・屋根を構成し、一体化した強靭な壁式鉄筋コンクリート構造です。
大成建設ハウジングのPC工法は、現場施工が基本のRC造と異なり、工場生産したコンクリートパネルを現場で組み立てる方式。強度が高く、品質も安定しており、RC造よりも低コスト・短工期で、重量鉄骨造とも遜色のないコストでコンクリートマンションを建築できます。
こちらのモデルルームでも高い遮音性、断熱性、気密性が体感できますので、ぜひご自身の肌でその魅力をお確かめください。
申し込むオーナーズ・スタイルが1~4月限定で「春の見学会まつり」を開催!見学会なびから予約・来場&アンケート回答で「QUOカードPay 1,000円分」!
オーナーズ・スタイルが2026年1月~4月の期間限定で「春の見学会まつり」を開催!「見学会なび」から見学会・モデルルームを2件以上予約して見学し、来場後アンケートの回答にご協力いただいた方にもれなく「QUOカードPay 1000円分」をプレゼント!※アンケートは予約完了メール内に記載されているフォームより、物件見学後にご回答ください
大成建設ハウジングについて
大手ゼネコンとして知られる大成建設グループのハウスメーカーである「大成建設ハウジング」。ゼネコンならではの高い技術力を結集したコンクリート住宅ブランド「パルコン」を半世紀以上にわたり販売しています。
「パルコン」のコンクリート賃貸マンションは災害に強く、美しい外観に優れた居住性が備わり、空室リスク、家賃下落リスクが極めて小さく、長期にわたる安定経営を可能にしています。
賃貸経営の長期安定経営には信頼できるパートナー選びが不可欠です。ハウスメーカーとしての豊富なノウハウを持つ大成建設ハウジングと、提携不動産管理会社が協力し、市場調査から資金計画、事業収支計画、入居者募集、管理・運営まで、トータルにオーナー様をサポートし、賃貸経営を成功へと導きます。
申し込む他にも見学したい方は必見!「見学会なび」
オーナーズ・スタイルでは「見学会なび」を公開中!各社の見学会やモデルルームが各種条件や地図でまとめて探しやすくなっています。特に賃貸住宅の建築をお考えの方にはご活用いただきたい便利なページです。常時見学会・モデルルーム情報は更新していきますので、ぜひご活用ください!






















